NASCONDI RICERCA

OPZIONI DI RICERCA freccia

  • Codice annuncio
  • Categoria
  • Tipologia
  • Valle
  • Paese
  • Prezzo

Sella Giudicarie

Vendita - Casa - Porzione Autonoma 132 (C) € 75.000,00

Clicca l'immagine per aprire la gallery fotografica

Descrizione

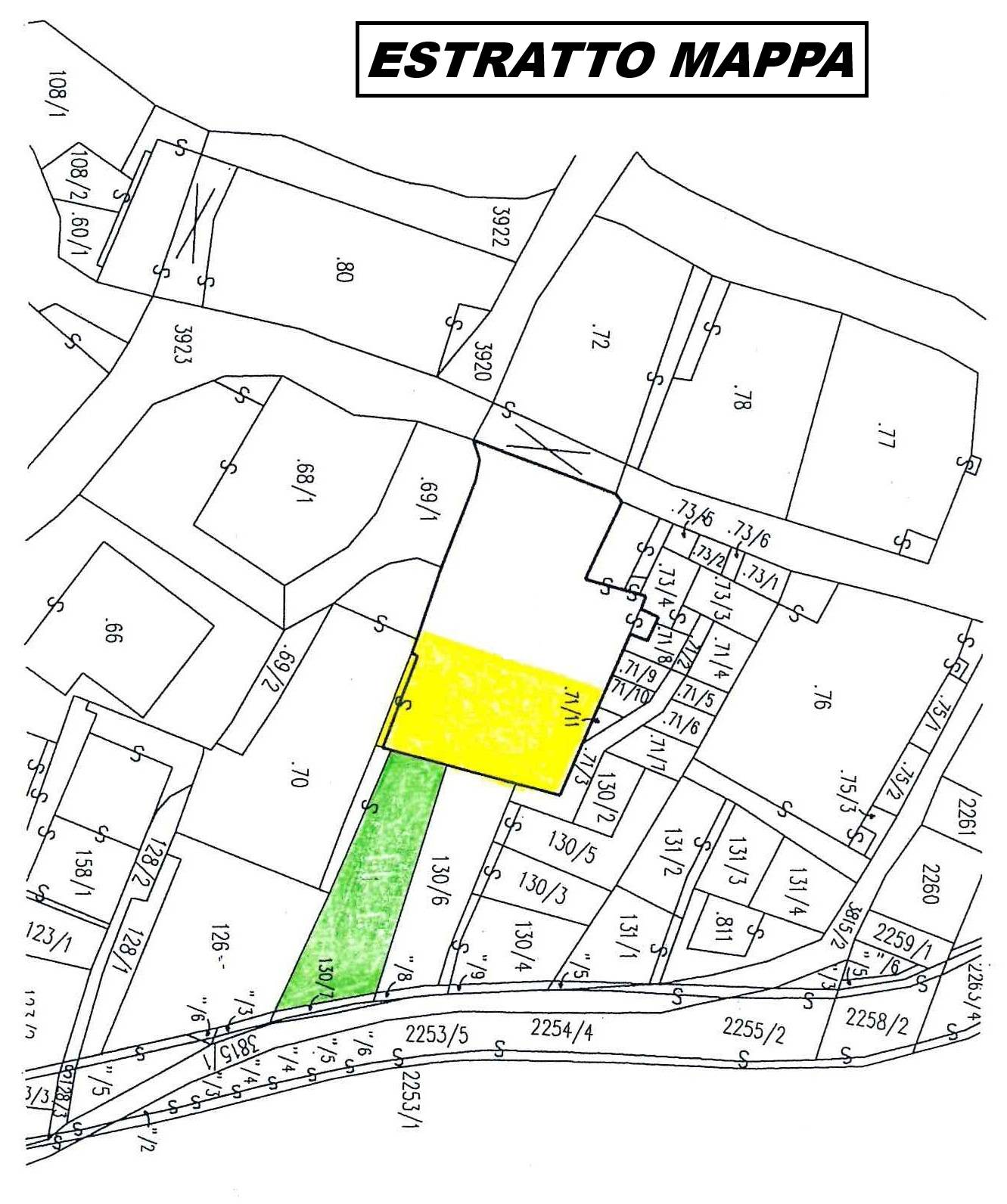
LOCALITA’: RONCONE - Fr. di Sella Giudicarie (TN)
IMMOBILE: Porzione di Casa indipendente - Appartamento di Tot. 204mq ca.
COMPOSIZIONE:
- Piano Secondo:
intero piano di 167mq ca. con balcone;
- Piano Sottotetto:
meta' piano di 37mq ca.;
- Piano Terra:
ingresso indipendente per accedere al piano secondo;
cantina esclusiva di 37mq ca.;
- Esterno:
cortile-giardino in comproprieta' con il piano sottostante di 122mq ca.
STATO D’USO: Da ristrutturare.
NOTE:
Soleggiata.
Casa privata di sole 2 unita'.
Metano fuori casa.
Possibilita' di usufruire dei contributi fiscali per le detrazione sui lavori.

Caratteristiche

  • Numero di locali

    5
  • Superficie

    204 mq
  • Piano

    Multipiano
  • Riscaldamento

    No
  • Numero bagni

    0
  • Balconi / Terrazzi

    Si
  • Stato immobile

    Da ristrutturare
  • Ascensore

    No
  • Giardino

    Comune
  • Garage

    No
  • Posti auto esterni

    Si
  • Classe Energetica

    G
logo

0465 - 946067